Продажа 2 комнатная квартира, Бендукидзе, массив Печерськ Киев
























9 758 000 грн
$238 000
221 270 €
ID: 511236
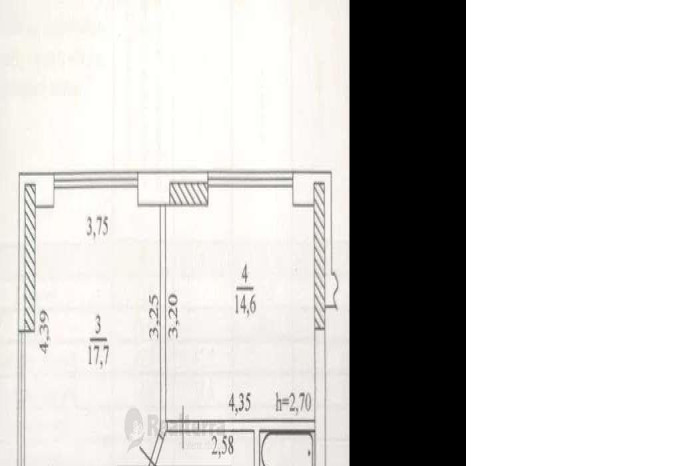
Общая площадь 67
Этаж 17/24
Кол-во комнат 2

2к, Печерськ, ЖК Підвисоцький, видова, Видова квартира в преміум-комплексі в центрі Києва. Пропонується простора, світла 2-кімнатна квартира площею 67 м² на 17 поверсі з панорамними вікнами, орієнтованими на південь і захід, які відкривають захопливий краєвид на Київ. Планування продумане до дрібниць: велика кухня-вітальня (17,7 м²), дві окремі кімнати та два санвузли. :) Дизайнерський ремонт і повна комплектація У квартирі зроблений новий дизайнерський ремонт із високоякісних матеріалів для себе. Усе продумано до деталей: • Підлога (крім санвузлів) — Alpha Vinyl Quick-Step • Стіни — фарбування з декоративним оздобленням • Стелі — гіпсокартон і натяжна тканина • Двері та плінтуси — пофарбований МДФ • Санвузли — натуральний камінь, преміум-сантехніка Встановлені вбудовані меблі, кухонний гарнітур, велика шафа-купе та повний комплект побутової техніки: холодильник, мікрохвильова піч, духова шафа, варильна поверхня, витяжка, посудомийна й пральна машини, 2 бойлери, 3 кондиціонери, фільтр для води. Усе це залишається новому власнику! :) Ідеальний стан — заходь і живи Стан квартири дозволяє відразу заселитися. Взимку дуже тепло, навіть при вимкненому опаленні. Для завершення інтер"єру залишилось лише облаштувати дві кімнати на власний смак. Балкон об’єднаний із кухнею, збільшуючи простір. Висота стелі — 2,67 м. :) Сучасний будинок із преміум-сервісом Будинок побудований у 2016 році забудовником СПЕЦЖИТЛОФОНД, обслуговується власним ОСББ із 2019 року. Монолітно-каркасна технологія, утеплення і звукоізоляція відповідають стандартам бізнес-класу. • 3 ліфти (2 великі, 1 малий), один із ліфтів — до паркінгу • Ліфти працюють від генератора при відключенні світла • Чисті, доглянуті під’їзди: щотижня вологе прибирання на всіх поверхах. • Домофон із керуванням через мобільний додаток • Під’їзд і територія під охороною, із відеоспостереженням та контролем доступу :) Простір для життя й відпочинку Закрита прибудинкова територія 2 га з озелененням, алеями, двома дитячими майданчиками, баскетбольним полем, зоною тренажерів і окремим майданчиком для вигулу собак. У дворі обладнано міні-парк для відпочинку. :) Унікальна локація на Печерську ЖК «Підвисоцький» знаходиться по вул. Кахи Бендукідзе 2 — це центр Києва, престижний район Новопечерських Липок. • 10 хв пішки до метро Дружби Народів • Поруч ботанічний сад ім. М.М. Гришка — одне з найкрасивіших місць Європи • У кроковій доступності супермаркети (Novus, Сільпо, Фора, Велика Кишеня), школи, дитсадки, лікарні, спортзали, кафе, ресторани, аптеки. • Зручний виїзд на бул. Миколи Міхновського, Михайла Бойчука , Лесі Українки, Саперно-Слобідська, пр-т Голосіївський, пр-т Науки, Столичне шосе, Драгомирова, Бастіонна.