Україна, 01004, м. Київ, вул. Басейна, 9 оф. 10 +38 (067) 545 70 55
Ми у соцмережах:

2 к, Киев, Воскресенка, ул. Воскресенская 2а.

4 920 000 грн

$120 000

111 565 €

ID: 508241

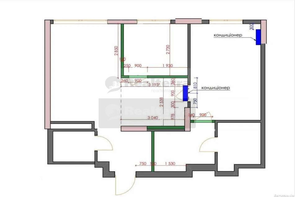
Общая площадь 70

Этаж 16/25

Кол-во комнат 2

Записатися на перегляд
AH Realterra Manager
+380 44 333-63-69

Продається 2-кімнатна квартира в ЖК «Паркові озера 2» – простора, світла з гарним видом на захід сонця! Локація: Дніпровський район, вул. Воскресенська, 2А Основні характеристики: Площа: 70 м² Поверх: 16 із 25 Будинок: сучасний, збудований у 2024 році Стан після забудовника: Чорнова обробка: залита стяжка підлоги, підготовлені стіни. Підведені комунікації: вода, електрика, опалення. Встановлені радіатори і вхідні двері. Документи: можлива переуступка Планування: Компактний та зручний коридор Простора кухня-вітальня з панорамним вікном – ідеально для родинних вечорів Кімната, яка чудово підійде для дитячої або кабінету Майстер-спальня з власною гардеробною та господарським санвузлом – максимальний комфорт для власників Гостьовий санвузол для зручності гостей та сім’ї Про ЖК «Паркові озера 2»: Закрита територія, охорона та відеоспостереження – безпека для вас та вашої родини На території: дитячий майданчик, спортивне поле (баскетбол, волейбол, теніс), бесідки та зони відпочинку Поруч мальовниче озеро та великий парк «Перемоги» – ідеальне місце для прогулянок і відпочинку Транспорт: Зручна транспортна розв"язка 20 хвилин до метро «Дарниця» – легко дістатися до будь-якої точки міста

Подібні об'єкти поруч

Шота Руставели
Печерский р-н
14 350 000 грн
$350 000
325 397 €
Детальніше В избранное
Детальніше В избранное
Драгоманова
Дарницький р-н
5 289 000 грн
$129 000
119 932 €
Детальніше В избранное

Корисні статті

Всі статті

Наші партнери