1 к, Киев, Виноградарь. ЖК Варшавський плюс



Район:
Подільський р-н
Вулиця:
Олеся Александра
2 296 000 грн
$56 000
52 063 €
ID: 502326
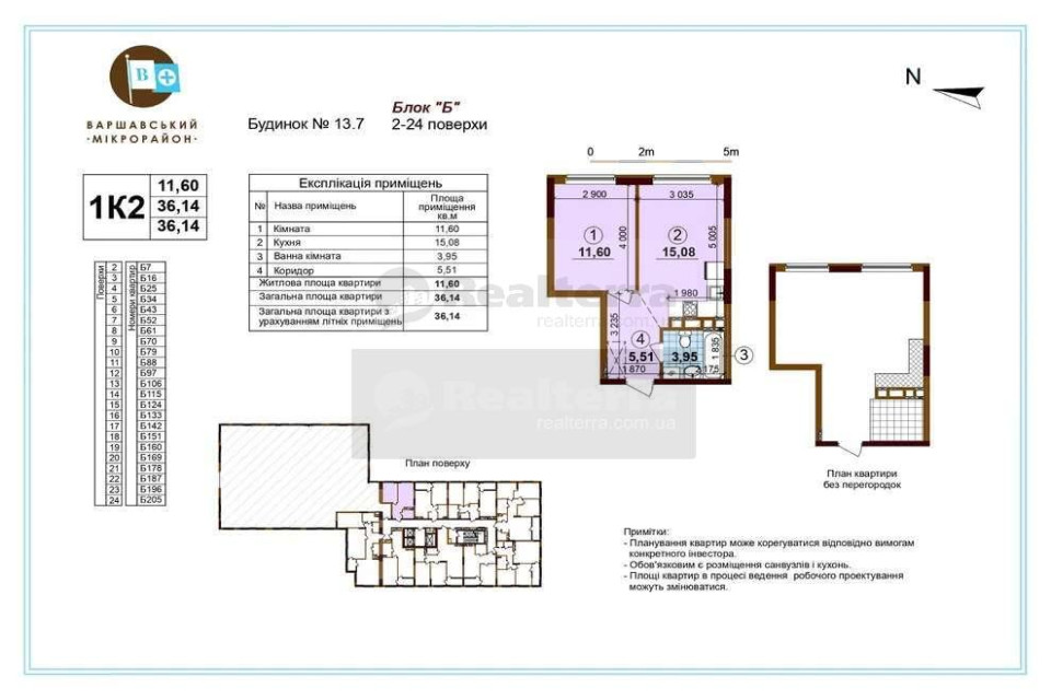
Общая площадь 36
Жилая площадь 11.6
Площадь кухни 15
Этаж 12/26
Кол-во комнат 1

Нацик Тетяна
+380 44 333-63-691 к, Киев, Виноградарь. ЖК Варшавський плюс, буд.13.7 ЖК Варшавський плюс, будинок 13.7, 1-кімнатна, 36,5/11,6/15,08 кв.м. Будинок зданий. Можна отримувати ключі і заходити на ремонт. Будується метро. Є генератор на ліфт, воду, тепло. 56 000 $ код 502326