Україна, 01004, м. Київ, вул. Басейна, 9 оф. 10 +38 (067) 545 70 55
Ми у соцмережах:

1 к, Киев, Виноградарь, ул. Сергея Данченко 1,ЖК Кристер Град

3 075 000 грн

$75 000

69 728 €

ID: 502294

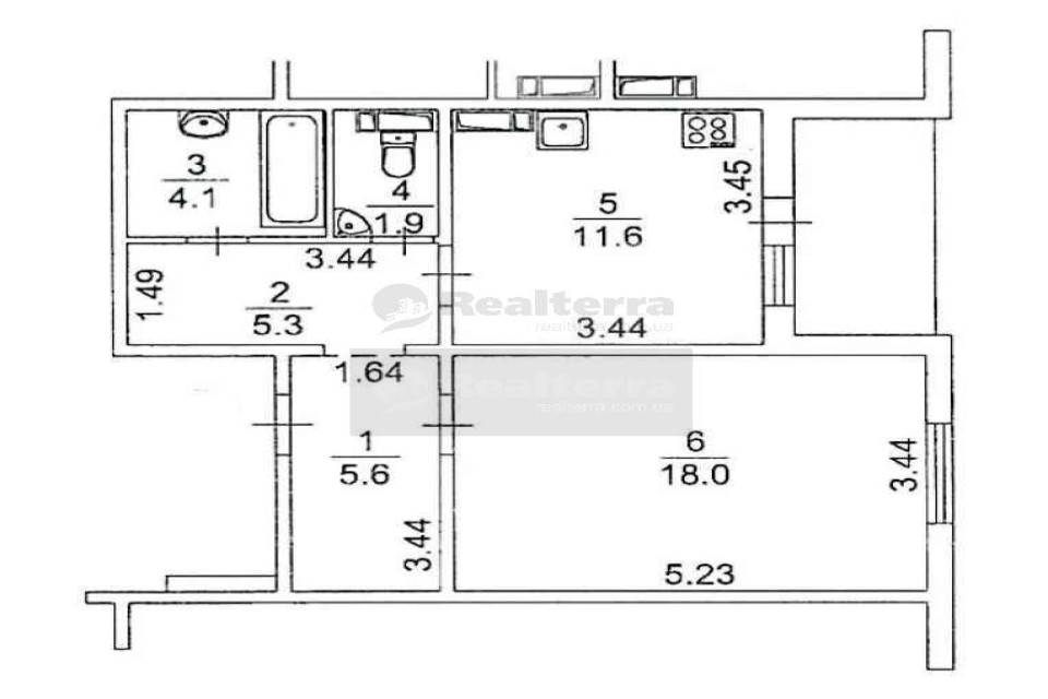
Общая площадь 49

Этаж 10/25

Кол-во комнат 1

Записатися на перегляд
AH Realterra Manager
+380 44 333-63-69

. Продається 1К , ЖК Кристер Град. Добудовується метро Подільський район, Виноградар, ж/к Крістер Град, вул Сергія Данченка, 1, термобудинок. Квартира всередині будинку на 10 поверсі 25-поверхового будинку. Загальна площа 49 м кв. Кухня 11.6 м кв, з кухні вихід у велику засклену лоджію. Простора квадратна кімната 18 м, велике вікно з видом у двір та на ЖК Ліпінка. Роздільний санвузол. Квартира мебльована: у кімнаті авторський меблевий гарнітур, зроблений на замовлення з натурального шпону «Зебрано» фірми Kronas. У передпокою світла шафа з натурального дерева . У наявності є пральна машина, бойлер, кухонна витяжка, електроплита з духовкою, мікрохвильовка, холодильник Whirpool. Встановлені броньовані двері. У будинку є три ліфти, у тому рахунку і вантажний. Зараз встановлюються генератори на випадок відсутності світла. Квартира дуже затишна і тепла. Батареї можно не вмикати, економлячи на опаленні, є лічильник тепла. Поряд ТЦ Ретровіль з кінотеатром, який має унікальний зал ScreenX. Поруч магазин Новус. Активно зараз будується метро станція Мостицька на відстані 5 хвилин від дому. код 502294

Подібні об'єкти поруч

Шота Руставели
Печерский р-н
14 350 000 грн
$350 000
325 397 €
Детальніше В избранное
Детальніше В избранное
Драгоманова
Дарницький р-н
5 289 000 грн
$129 000
119 932 €
Детальніше В избранное

Корисні статті

Всі статті

Наші партнери