Україна, 01004, м. Київ, вул. Басейна, 9 оф. 10 +38 (067) 545 70 55
Ми у соцмережах:

1 к, Киев, ЖК "Лебединий", вул. Ревуцького 40-б

2 464 182 грн

$60 102

55 877 €

ID: 497328

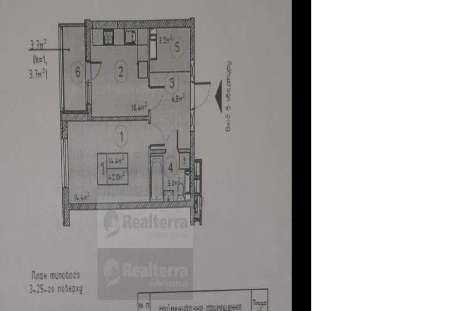
Общая площадь 42

Этаж 11/25

Кол-во комнат 1

Записатися на перегляд
AH Realterra Manager
+380 44 333-63-69

1 к, Киев, Позняки, ул. Ревуцкого 40б. Продаж! 1-кімнатна квартира в ЖК "Лебединий", вул. Ревуцького 40-б ЖК «Лебединий», вул. Ревуцького, 40-Б, секція 3, 11/25 пов., 42,4 м², 1-кімнатна, 60000$, без комісії! Квартира має хороше планування. Стан-після будівельників. З вікон відкривається вид на озеро та майданчик. Будинок забезпечений електропостачанням під час вимкнень світла. Монолітно-каркасний будинок біля самісінького метро з підземним паркінгом. Зданий в 2021р. Закрита безпечна територія під охороною та відеонаглядом. На території комплексу є все необхідне для комфортного життя. Поряд багато хороших шкіл, дитячих садочків, торговельних центрів. озеро Лебедине з облаштованою набережною, дитячим майданчиком також поряд, там можна побігати та позайматися спортом, погуляти чи просто відпочити. До станції м. «Харківська» - 400 м. Продаж здійснюється за угодою по відступленню прав і одразу ж оформлюється право власності. Витрати по відступленню беру на себе, комісій немає. 2 500 000 грн.

Подібні об'єкти поруч

Шота Руставели
Печерский р-н
14 350 000 грн
$350 000
325 397 €
Детальніше В избранное
Детальніше В избранное
Драгоманова
Дарницький р-н
5 289 000 грн
$129 000
119 932 €
Детальніше В избранное

Корисні статті

Всі статті

Наші партнери