Україна, 01004, м. Київ, вул. Басейна, 9 оф. 10 +38 (067) 545 70 55
Ми у соцмережах:

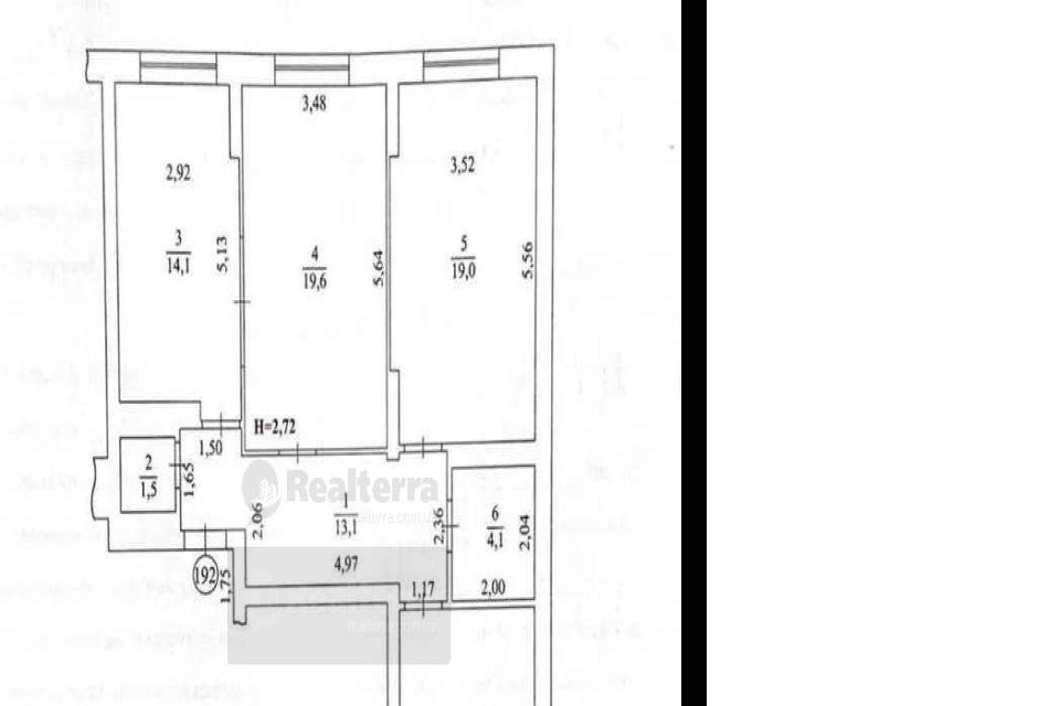
3 к, Киев, Караваевы дачи, ул. Нижнеключевая 14.

7 093 000 грн

$173 000

160 839 €

ID: 498512

Общая площадь 92

Этаж 17/25

Кол-во комнат 3

Записатися на перегляд
AH Realterra Manager
+380 44 333-63-69

Продам 3к квартиру вул Нижньоключова 14 Солом"янський р-н Campus Шукаєте ідеальну квартиру в сучасному будинку? Пропонуємо вам трикімнатну квартиру в одному з найкращих ЖК Солом"янського району Києва! Свіжий, сучасний ремонт — заїжджай і живи! Роздільне планування: Максимум зручності та функціональності. Переваги ЖК Campus: - Підземний паркінг — комфортне місце для вашого авто. - Постійна подача води навіть під час відключень світла. - Незабаром буде встановлено генератор для безперебійної роботи ліфтів. - Автономне опалення завдяки власній котельні — тепло і затишно в будь-яку погоду. Зручне розташування: До станції метро "Політехнічний інститут" — всього 15-20 хвилин пішки. Зупинки швидкісного трамваю знаходяться в 10 хвилинах пішої ходи. До станції метро "Шулявка" — лише 10 хвилин транспортом. КОД 498512

Подібні об'єкти поруч

Шота Руставели
Печерский р-н
14 350 000 грн
$350 000
325 397 €
Детальніше В избранное
Детальніше В избранное
Драгоманова
Дарницький р-н
5 289 000 грн
$129 000
119 932 €
Детальніше В избранное

Корисні статті

Всі статті

Наші партнери