Україна, 01004, м. Київ, вул. Басейна, 9 оф. 10 +38 (067) 545 70 55
Ми у соцмережах:

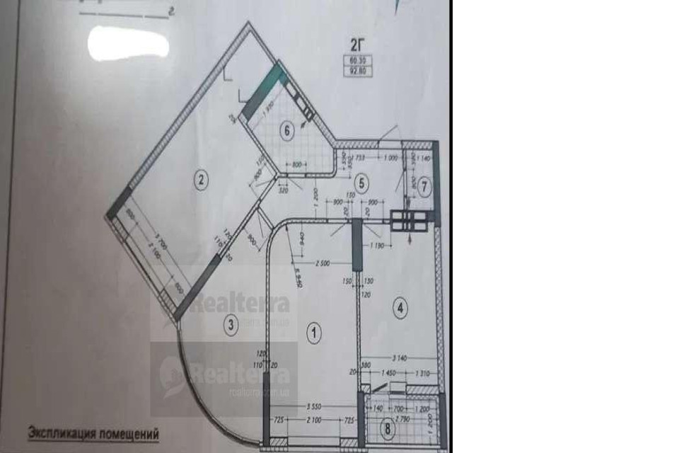
3 к, Киев, Голосеево, ул. Михаила Максимовича 3г.

7 585 000 грн

$185 000

171 995 €

ID: 476980

Общая площадь 93

Площадь кухни 16

Этаж 19/23

Кол-во комнат 3

Записатися на перегляд
AH Realterra Manager
+380 44 333-63-69

Продаю просторную, уютную, видовую 3-х к.кв. в Голосеевском районе по адресу ул. М. Максимовича 3-Г, Ж/К 4 сезона. 19/23 этаж, м. Васильковская в 5 мин. ходьбы. Очень теплая и комфортная для жизни квартира, сделан высококачественный ремонт в светлых, пастельных тонах с использованием качественных материалов! Квартира оборудована всей необходимой качественной мебелью и техникой от известных мировых производителей (Италия, Испания, Германия). В квартире используются встроенная система хранения, что делает пространство открытым и комфортным для проживания. Входная и межкомнатные двери производства Италия, премиум класс. Кухонная поверхность, фартук, подоконники, обеденный стол - из искусственного камня (акрил). На стенах частично венецианская штукатурка. Пол - водоотталкивающий ламинат + плитка с системой теплый пол. Напольная и настенная плитка производство Испания. В гостевом и основном санузлах используется сантехника Villeroy&Boch + большая кварилловая ванная. Смесители и душевая система - Hansgrohe. Удобная, дизайнеская перепланировка квартиры расширила и отделила пространство: • Гостинная + домашний кинотеатр • Большая кухня, • Просторная спальня, • Гардеробная комната • Детская комната • 2 санузла • Просторная прихожая со встроенными шкафами • Застекленный балкон с использованием откатных систем. • Кладовая/ колясочная пред входом в квартиру Бытовая техника + коммуникации: •посудомойка, •встроенная кухонная техника (варочная поверхность, духовой шкаф) •3 кондиционера, •бойлер, •2 smart-телевизора, •стиральная машина •теплый пол •охранная сигнализация + видео наблюдение •видео-домофон •интернет вай фай, проводной •консьерж На ВСЕ коммуникации установлены индивидуальные счетчики (отопление, х.вода, г.вода, элек-гия 2 фазный) Развитая инфраструктура Ж/К. Удобная транспортная развязка. Печерск в 7 мин. на Авто. В 5 минутах хотьбы супермаркет Варус. Под домом магазины, почта, отделения банка, садики, аптеки, университет Т. Г. Шевченка. код476980

Корисні статті

Всі статті

Наші партнери